APARTMENT FOR RENT
Na Švihance Praha 2 -| Space: | Price: | 65 000 CZK (2 516 EUR) | ID: | 6983 | |
|---|---|---|---|---|---|
| Size : | 150 m2 | Monthly fees: |
• 1910 Art deco building, high ceilings, original wooden doors and paneling (renovated).
Prague's Vinohrady district offers a diverse lifestyle with its atmosphere of local theaters, clubs, restaurants, shops, and services. The proximity of the extensive Rieger Park encourages walks, jogging, or Sunday picnics. One of the advantages of this location is its transport links—it is just a few minutes' walk to Jiřího z Poděbrad Square with its metro station.
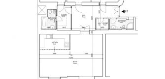
• 150 m2 one-level apartment
• large living room with open dining area, kitchen (accessible through sliding doors from dining area), 2 full bathrooms, 3 bedrooms, hall and separate washing/storage room.
• Entirely renovated building.
• Beautiful location near Rieger Park, landscaped garden in rear.
• Metro, tram, bus 5 minutes walking distance.
• City center 10 minutes walking distance through park
• Kitchen is fully equipped: dishwasher, large fridge, separate freezer, ceramic stove, and oven.
• Washing machine, separate dryer.
• Bathrooms with bathtub and shower, bathroom cabinets.
• Large walk-in closet in master bedroom.
• Granite floors in bathrooms and kitchen.
• Hard wooden parquet.
• Satellite and cable TV, broadband internet.
• New plumbing, wiring, electricity throughout whole building.
• Underground garage parking in the building.
• New elevator.
• Rent CZK 65.000 (unfurnished), furnishing possible.
• Garage parking space CZK 5.000 + VAT
• Utilities and service charges CZK 6.500.
Available from July, 2026
| Location | Praha 2 | Building | Bricks |
|---|---|---|---|
| Street | Na Švihance | Ownership | Personal |
| Price | 65 000 CZK (2 516 EUR) | Furnished | Not furnished |
| Size | 150 m2 | ||
| Floor | 3rd floor | ||
| Lift | Yes | parkovací stání | Yes |
| Dryer | Yes | Washing machine | Yes |
| Location | Praha 2 |
|---|---|
| Building | Bricks |
| Street | Na Švihance |
| Ownership | Personal |
| Price |
65 000 CZK (2 516 EUR) |
| Furnished | Not furnished |
| Size | 150 m2 |
| Floor | 3rd floor |
| Floors | |
| Lift | Yes |
| parkovací stání | Yes |
| Dryer | Yes |
| Washing machine | Yes |
Send request
| Agent | Mária Mihinová |
|---|---|
| Phone: Email: |
+420606731973 mihinova@viphomes.cz |





